Büro
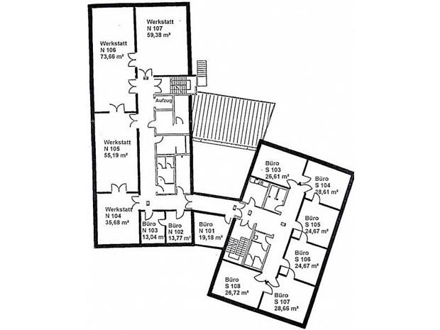
In verkehrsgünstiger Lage und guter Anbindung bieten wir Ihnen attraktive Büroflächen unterschiedlicher Größe von 13 m² bis zu 48 m². Gern auch in Kombination mit Produktions-, Labor- und Werkstattflächen.
In unseren modernen und funktionellen Gebäuden schaffen wir die räumlichen Voraussetzungen für Ihren Unternehmenserfolg. Unsere Büroräume verfügen alle über modernste technische Kommunikationsmöglichkeiten, die Gemeinschaftseinrichtungen mit Vortrags-, Seminar-, und Konferenzräumen sowie unsere Ausstellungsflächen stehen zur gemeinsamen Nutzung zur Verfügung.
die wichtigsten Eckdaten:
- Mietbüros von 13 bis 48 m²
- Parkplätze am Haus
- Strukturierte Verkabelung
- ISDN Telefon & Faxanschluss vorhanden
- DSL Breitbandanschluss im Haus
- EDV-gerechte Beleuchtung
- Strapazierfähiger Teppichboden





